Appartamento in vendita a Valdagno Rif. VT89

Scroll

Richiedi info

Inviando dichiaro di aver letto e compreso le finalità e le modalità del trattamento dei dati personali ivi descritte

Dettagli

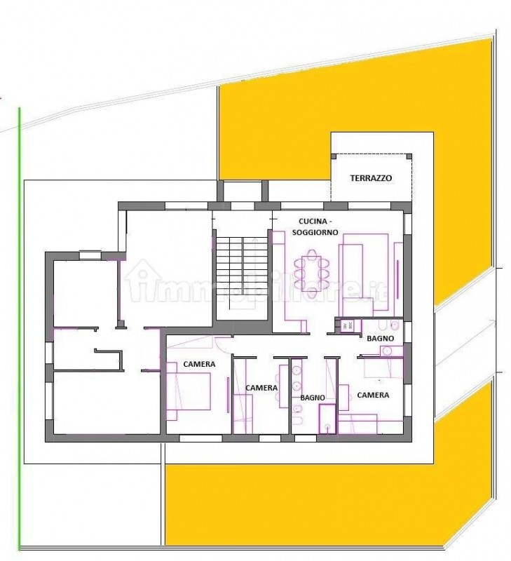
TRICAMERE NUOVO CON AMPIO TERRAZZO ABITABILE

In palazzina di sole quattro unità abitative in fase di costruzione, proponiamo appartamenti tricamere nel quale potrete scegliere le finiture in base alle vostre preferenze.

Le soluzioni si trovano al piano terra e al piano primo, ognuna composta da cucina e soggiorno in open space, tre camere da letto (una matrimoniale, una doppia e una singola), due servizi finestrati e garage doppi al piano interrato.

A completare le unità troviamo il terrazzo per l'appartamento al piano primo e il giardino per l'appartamento al piano terra.

Ogni abitazione sarà dotata di riscaldamento a pavimento, con caldaia in pompa di calore, cappotto esterno e fotovoltaico.

Contattateci per maggiori informazioni.

Dove Valdagno
Tipologia Appartamento
Prezzo informazioni in agenzia
Piano 1
Ascensore No
Bagni 2
Spese condominiali n.d.
Condizioni Nuovo

Informazioni sui cookie presenti in questo sito

Questo sito utilizza cookie tecnici e statistici anonimi, necessari al suo funzionamento.

Per saperne di più x